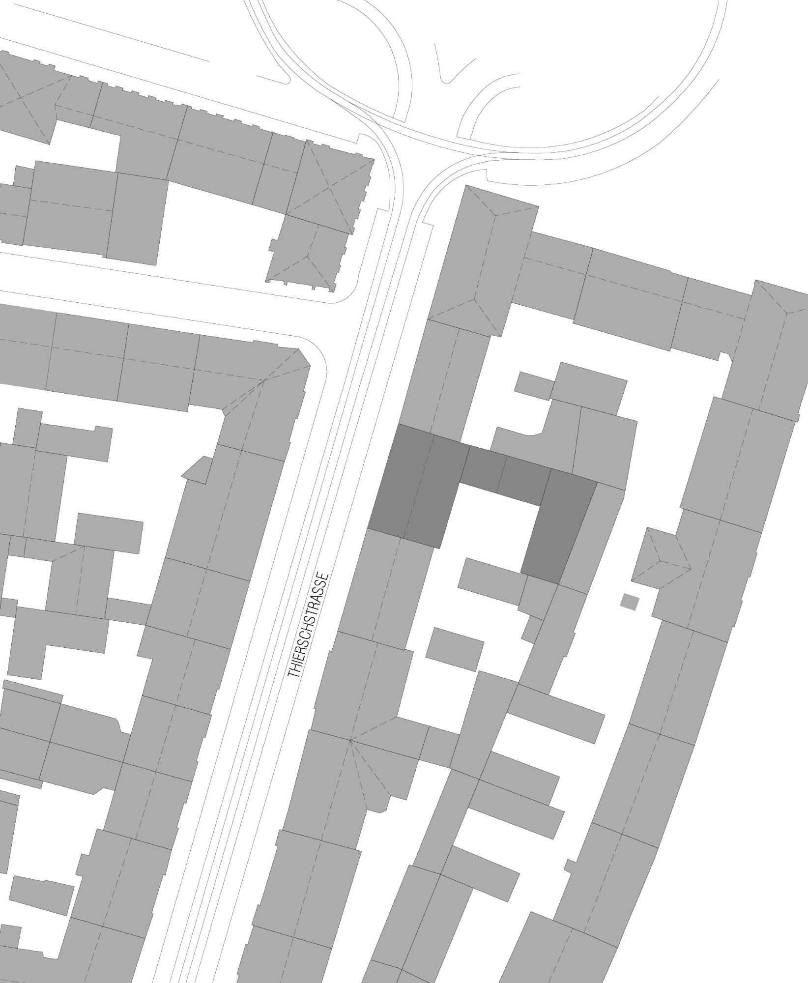
THIERSCHSTRASSE 42

in Bearbeitung

Neubau Mehrfamilienhaus

NEUBAU MEHRFAMILIENHAUS